Ngôi nhà nằm ở trung tâm thành phố và có không gian rộng rãi được bao phủ bởi mảng xanh từ cánh đồng và hàng cây sưa. Ngoài ra, ngôi nhà còn có bể bơi và sân chơi thư giãn đầy đủ.

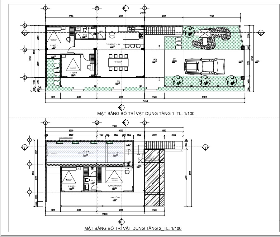
Công trình có quy mô 2 tầng, diện tích xây dựng 250 m2, tọa lạc tại trung tâm TP Tam Kỳ, Quảng Nam. Đây là nơi ở của gia đình 3 thế hệ, công năng chính gồm phòng khách, bếp, 4 phòng ngủ cùng sân chơi, bể bơi thư giãn.
Từng phải cách ly trong ngôi nhà ống chật hẹp giai đoạn dịch Covid-19, gia chủ mong muốn xây dựng một không gian sống mộc mạc, gần gũi với thiên nhiên. Công trình mang nét văn hóa vùng Tam Kỳ, bao quanh bởi cánh đồng lúa xanh ngát và hàng cây sưa nở hoa vàng li ti.

Toàn bộ mặt tiền, nội thất và kiến trúc nhà đều sử dụng tông màu kem – nâu, ứng dụng thiết kế giả gỗ và các thao tác sơn rơm đất, phun gai, hiệu ứng… để tạo sự nhẹ nhàng, ấm cúng.

Phòng bếp được mang ra trước nhà, mở cửa sổ lớn hướng ra sân trước để thoát mùi. Bàn bếp được xây cố định, bề mặt ốp gạch men trắng, dễ vệ sinh.

Phòng bếp thông với phòng khách, tận dụng hệ bàn dài vừa làm bàn ăn, vừa làm bàn tiếp khách, tăng sự kết nối giữa các thành viên.
Nhờ hệ cửa kính lớn sát trần, không gian bên trong gần như không có khoảng cách với đồng ruộng, thiên nhiên xung quanh, tối ưu ánh sáng tự nhiên.

Ban công tầng 2 là không gian ông bà thư giãn, tâm sự với con cháu. Để thích nghi với môi trường ngoài trời, ban công ứng dụng trần thạch cao chống ẩm và lát sàn nhựa giả gỗ.

Khu vực bể bơi thư giãn ngoài trời ở tầng 2. Thành và đáy bể được ốp đá sọc dưa, có khả năng chịu nước và chống mài mòn tốt.

Cầu thang ngoài trời dẫn lên bể bơi ở tầng 2 là sự kết hợp giữa hệ khung sắt và mặt bậc ốp nhựa giả gỗ, thích nghi tốt với những thay đổi của thời tiết.

Cầu thang ngoài trời dẫn lên bể bơi ở tầng 2 là sự kết hợp giữa hệ khung sắt và mặt bậc ốp nhựa giả gỗ, thích nghi tốt với những thay đổi của thời tiết.

Phần mái sử dụng khung cơ khí lợp tôn giả ngói, cột nhà, xà ngang ứng dụng khung cơ khí ốp giả gỗ, giảm nhiệt cho không gian bên dưới nhà.



Thiết kế & Thi công: Thicons Group
KTS chủ trì: Lê Hữu Thi
Hình ảnh: Thicons Group
Theo VnExpress
ONE Real Estate là một công ty môi giới bất động sản hàng đầu, chuyên tư vấn và cung cấp các dự án bất động sản để ở và khai thác dòng tiền. Công ty có mục tiêu mang lại lợi ích tối đa cho khách hàng thông qua việc phân phối các dự án bất động sản có tiềm năng sinh lợi cao của các chủ đầu tư uy tín.
======
🏠 Tòa nhà T4-51, Phố Manhattan, Khu đô thị Vinhomes Grand Park, TP. Thủ Đức, HCMC.
☎️ +84 98 220 8006
📧 info@onereal.vn
🏠 https://onereal.vn